Areas of expertise

Casa Studio has demonstrated expertise in the preparation of Development Applications and working drawings. We have successfully lodged applications in councils around Sydney, from North Shore to Inner and Central Sydney. we provide for each project:
• An unique Design
• The best and practical Interior Design, that will exceed expectations. Measure existing building up and produce a new plan as existing.
• Professional Documentation for a successful Application and building



Drafting Department

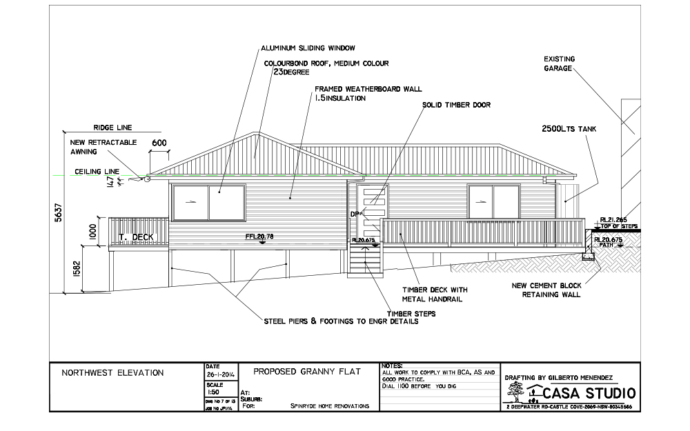
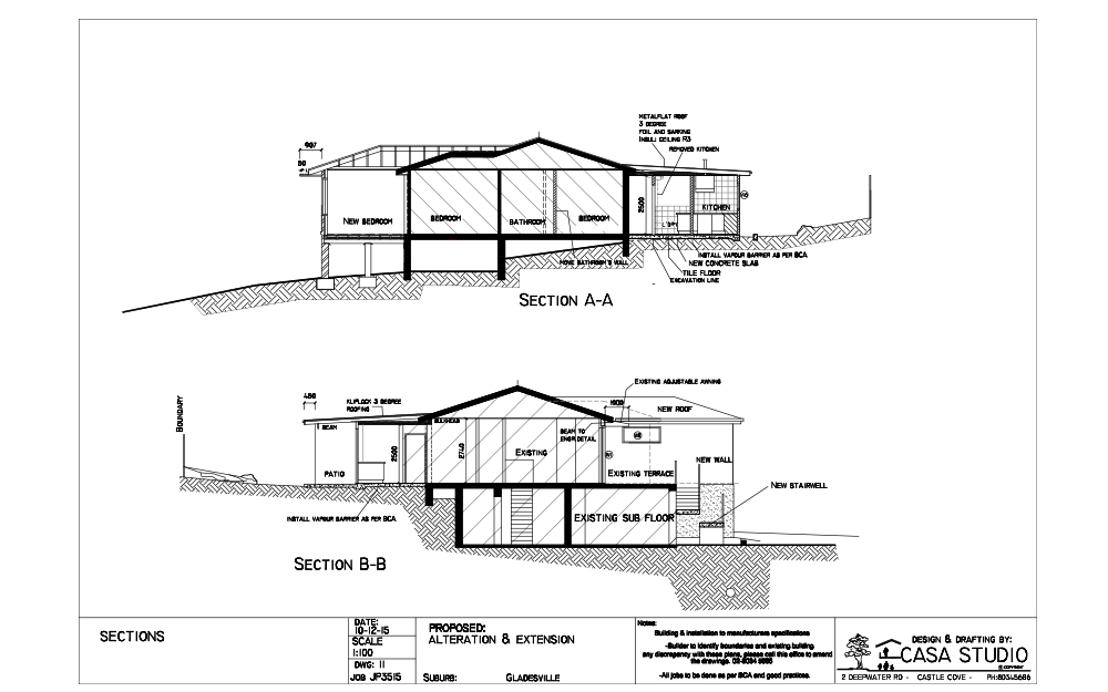
Our Drafting Department, with qualified draftsman, is our central engine and produces high standard drawing and specifications for a completed Development Application and Construction Certificate documentations. Our high standard drawings and presentation speeds up the approval process.









Interior Design Department

Our Interior Design Department is a very important part in Casa Studio's integral design solution in our search for excellence and functionality design where our clients find their dreamed space coming to live.